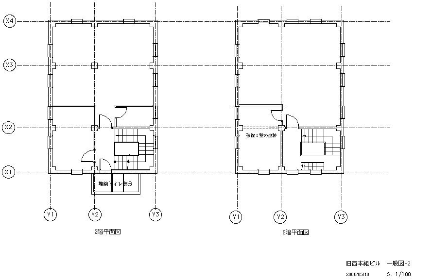
旧西本組本社ビル2〜3階平面図

2000年3月10日作成 2000年7月11日改訂
(c) Naoko Nishimoto and Shin-ichi Nishimoto, all rights reserved.


旧西本組本社ビル2〜3階平面図

平面も後にいくらか変更されています。


トップページに戻る

このホームページ作成の責任者は〔有〕クロノスの西本直子と西本真一です。

ページ構成に関する御意見は西本直子 kronos@air.linkclub.or.jp まで御連絡ください。