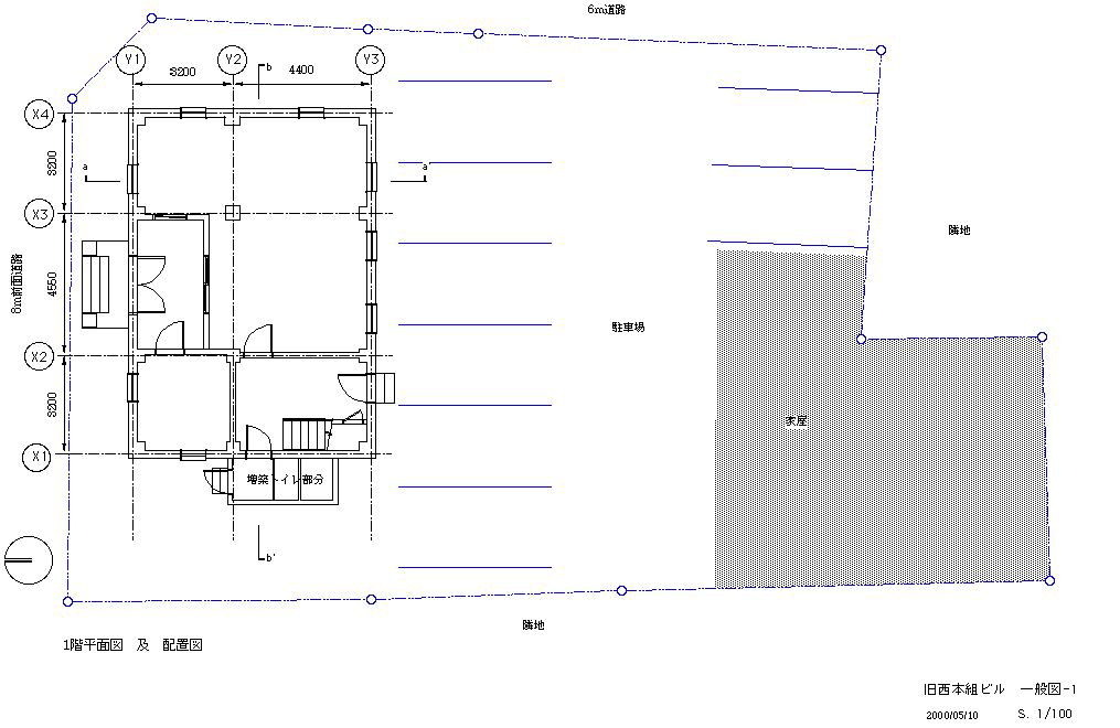
旧西本組本社ビル1階平面図

2000年3月10日作成 2000年7月11日改訂
(c) Naoko Nishimoto and Shin-ichi Nishimoto, all rights reserved.


旧西本組本社ビル1階平面図

トイレは後補です。またビルの東側には母屋があり、渡り廊下で行くことができるようになっていました。


トップページに戻る

このホームページ作成の責任者は〔有〕クロノスの西本直子と西本真一です。

ページ構成に関する御意見は西本直子 kronos@air.linkclub.or.jp まで御連絡ください。